Gajumaru no niwa - Itoman - Vacation STAY 16759 - Itoman
Discover complete travel solutions for Japan! Authentic accommodations, car rentals, attraction tickets. Choose from traditional ryokans, unique capsule hotels, business accommodations, temple lodgings (shukubo), minshuku homestays, luxury resorts, and budget hostels. Explore Tokyo's Imperial Palace, Kyoto's Fushimi Inari Shrine, Kinkakuji Temple, Osaka's Dotombori District, or the majestic Mt Fuji with pre-booked tickets. Popular destinations: Tokyo, Kyoto, Osaka, Hokkaido, Okinawa, and more!
Gajumaru no niwa - Itoman - Vacation STAY 16759
Itoman 8 Ihara Gajumaru no niwa - Itoman
WiFi
Parking
We speak
JA
WiFi
Parking
We speak
JA
Gajumaru no niwa - Itoman - Vacation STAY 16759 isin Itoman, 21 km from Sefa Utaki, 31 km from Nakagusuku Castle, as well as 42 km from Katsuren Castle. The air-conditioned accommodation is 2.5 km from Komesu Beach, and guests can benefit from private parking available on site and free WiFi. The property is non-smoking and is situated 18 km from Tamaudun Mausoleum.
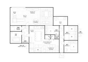
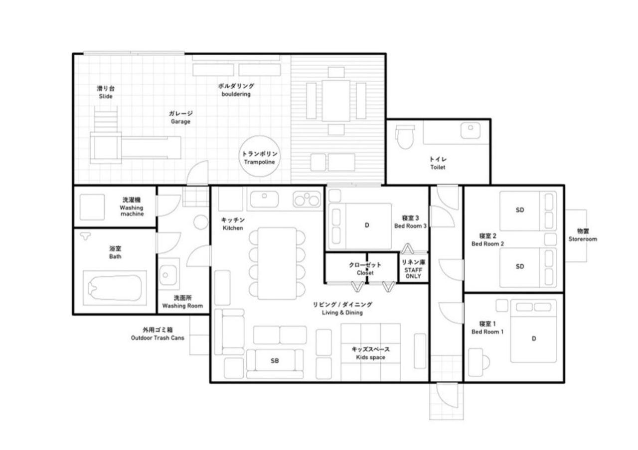
The spacious holiday home features 3 bedrooms, a TV and a fully equipped kitchen that provides guests with a microwave, a fridge, a washing machine, a stovetop and kitchenware.
Yakena Bus terminal is 45 km from the holiday home, while Zakimi Gusuku Castle is 45 km from the property. Naha Airport is 11 km away.
The hotel day starts from hour 16:00 and ends at 10:00.
If you would like a qualified invoice,please contact the property directly.This property will not accommodate hen, stag or similar parties.
Holiday Home. Guests will find a stovetop, a refrigerator, kitchenware and a microwave in the well-fitted kitchen. The holiday home also comes with a barbecue. The spacious holiday home features air conditioning, a washing machine, as well as a private bathroom boasting a bath and a shower. The unit has 5 beds and 2 futons.
License number: M470019190
Heating
Guest accommodation is disinfected between stays
Guest accommodation sealed after cleaning
Internet services
WiFi
Non-smoking rooms
Free parking
Free WiFi
Contactless check-in/check-out
Air conditioning
First aid kit available
Parking
Private parking
WiFi available in all areas
Parking on site
Non-smoking throughout
Property is cleaned by professional cleaning companies
